Công trình với thiết kế độc đáo này nằm nổi bật giữa xung quanh là nhà trọ cho công nhân, ngay gần một khu công nghiệp huyện Lái Thiêu, Thuận An, Bình Dương. Nếu bạn đang muốn xây nhà mà nguồn vốn hạn hẹp, vậy có thể tham khảo thiết kế biệt thự phố này nhé.

Căn nhà được xây khá đơn giản gồm 2 tầng. Chủ nhân của nó, hiện chỉ sống một mình nhưng căn nhà này được thiết kế cho anh và gia đình trong tương lai. Chủ căn nhà rất biết nhìn xa trông rộng và đã tính toán hết các trường hợp có thể để cùng kiến trúc sư tối đa hóa những mục đích đó. Điểm đặc biệt chính là, gạch không nung là chất liệu để xây nên ngôi nhà. Đây cũng chính là điểm khá tiết kiệm chi phí so với những căn nhà thong thường.

Căn nhà được bao quanh bởi rất nhiều dãy nhà trọ cho công nhân của khu công nghiệp gần đó. Mặt tiền của căn nhà có thiết kế chữ L ngược. Điều này được xem là khá đặc biệt nhưng cũng chính là chủ đề tranh cãi khi có nhiều ý kiến cho rằng thiết kế này sẽ mang đến vận xui cho gia chủ.

Vì bị giới hạn về mặt tài chính nên những vật liệu để xây lên ngôi nhà cũng đều rất dễ tìm và không quá đắt. Tuy vậy, những vật liệu này lại không kém phần tinh tế. Cửa thông giữa các phòng được thiết kế cong ở phía trên tạo cảm giác cổ điển, khá mới lạ so với những căn nhà hiện đại ngày nay. Sàn nhà được làm từ bê-tông mài với chi phí vừa phải. Cửa cũng chỉ được làm từ gỗ thông dụng, không tốn kém vào chi phí là mấy. Hiện nay, bê-tông được ứng dụng khá nhiều trong xây dựng bởi mức chi phí khá hợp lý cũng như ngày càng có nhiều kiểu dáng bắt mắt. Nó hứa hẹn sẽ còn rất “hot” trong tương lai.

Đây là thiết kế của phòng khách tối giản với những vật liệu giá thành vừa phải. Thiết kế nội thất trong phòng cũng khá đơn giản lại tiết kiệm tối đa diện tích cho phòng khách.

Không gian phòng bếp ngay kề.
Bàn bếp cũng được thiết kế không cầu kỳ, phù hợp với tiêu chí về chi phí mà chủ nhân căn nhà đặt ra. Hơn nữa, khu bếp có bố trí cửa kính, có thể tận dụng được ánh sáng tự nhiên để nấu ăn ban ngày. Một thiết kế khá sáng tạo cần được nhân rộng.

Việc thiết kế nội thất cũng cần phải được tính toán chính xác để không bị vượt quá mức chi phí hạn định. Không những thế, đồ nội thất cũng cần phải gọn gàng, không quá cồng kềnh để có thể tiết kiệm diện tích.

Tone màu chủ đạo chính là màu xám, màu gỗ và bê-tông. Đây đều là những gam màu hết sức đơn giản. Tuy vậy vẫn khiến cho căn nhà có một nét rất riêng.

Theo tiết lộ của chủ nhân, kinh phí để xây dựng căn nhà chỉ khoảng 450 triệu đồng. Do phương pháp thi công căn nhà còn khá mới mẻ với thợ xây tại địa phương nên trong quá trình xây dựng đã gặp phải không ít khó khăn, vướng mắc.

Mặc dù chi phí để xây nên căn nhà thì không lớn nhưng nó cũng có nhiều góc khá tinh tế mà bạn không thể phủ nhận. Gạch bông đang quay trở lại như một xu hướng, cũng chính vì thế mà một góc căn nhà được lát loại gạch này. Và tất nhiên, giá thành của nó cũng khá vừa phải.

Căn nhà có thiết kế giếng trời phía trên cầu thang chính làm cho căn nhà luôn hứng được ánh sáng tự nhiên, hơn nữa còn rất thông thoáng. Việc đem giếng trời vào căn nhà là rất thông minh đối với thiết kế nhà phố Bình Dương bởi không gian ở phố khá chật chội và đông đúc, có giếng trời, vấn đề này đã được giải quyết. Có 2 phòng ngủ trên tầng hai của căn nhà. Mỗi tầng đều có công trình phụ. Ý định của chủ nhân khi xây dựng căn nhà chính là có thể sử dụng nó tới 15 đến 20 năm nữa, khi anh đã có con cái, gia đình đã có đông thành viên hơn thì nhu cầu của mỗi người trong nhà đều vẫn được đáp ứng triệt để mặc dù diện tích mặt sàn có không lớn.

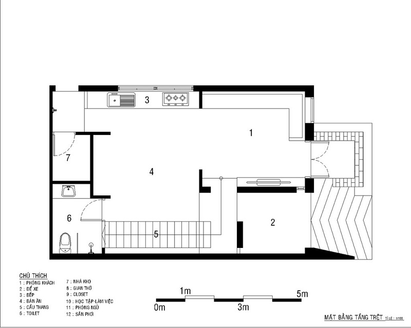
Đây là bản vẽ mặt bằng tầng một của công trình.
Mong rằng với những thông tin trên bạn đã có phương án cho thiết kế nhà trong tương lai của mình.
Nguồn: news.zing.vn